DUNTES SQUARE TOWER | CONCEPT PROJECT | 2021

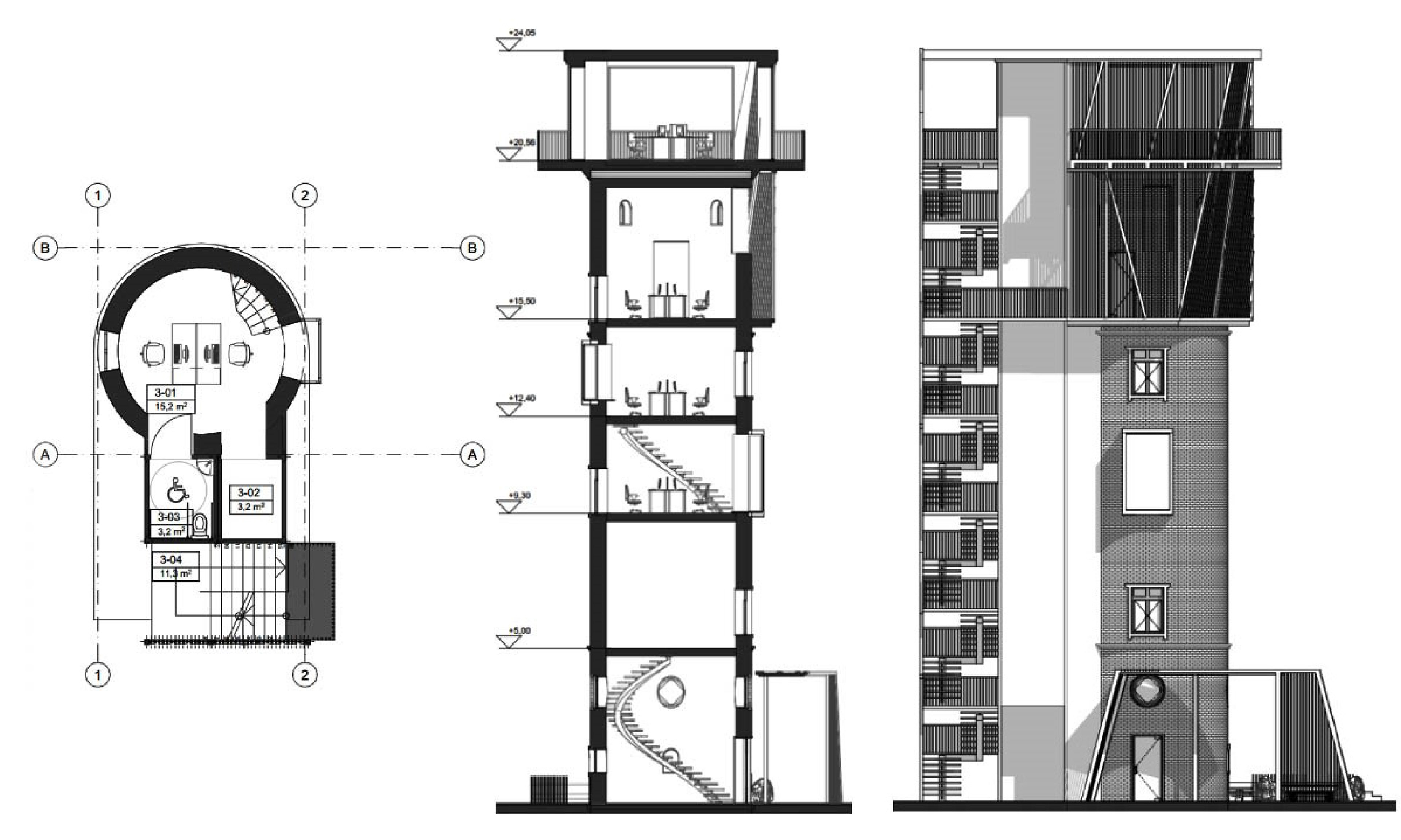
The goal of the project is to convert a brick water tower into a modern and functional workspace while preserving its historic aesthetic. A revitalization proposal has been developed that combines the historical architectural features with modern materials.

The plan is to create office spaces of 70–130 m² in the tower, adaptable to various needs, including creative collaboration and individual work. The project also includes a meeting room, a relaxation area, a staircase, and an elevator. The proposal also includes landscaping the surrounding area with a green space and a terrace.

The project incorporates sustainable solutions, giving the tower a new function while preserving its historical heritage and strengthening the identity of the location.

You may also like

Back to Top