D101 | JURMALA "Jūras skati" | 2022

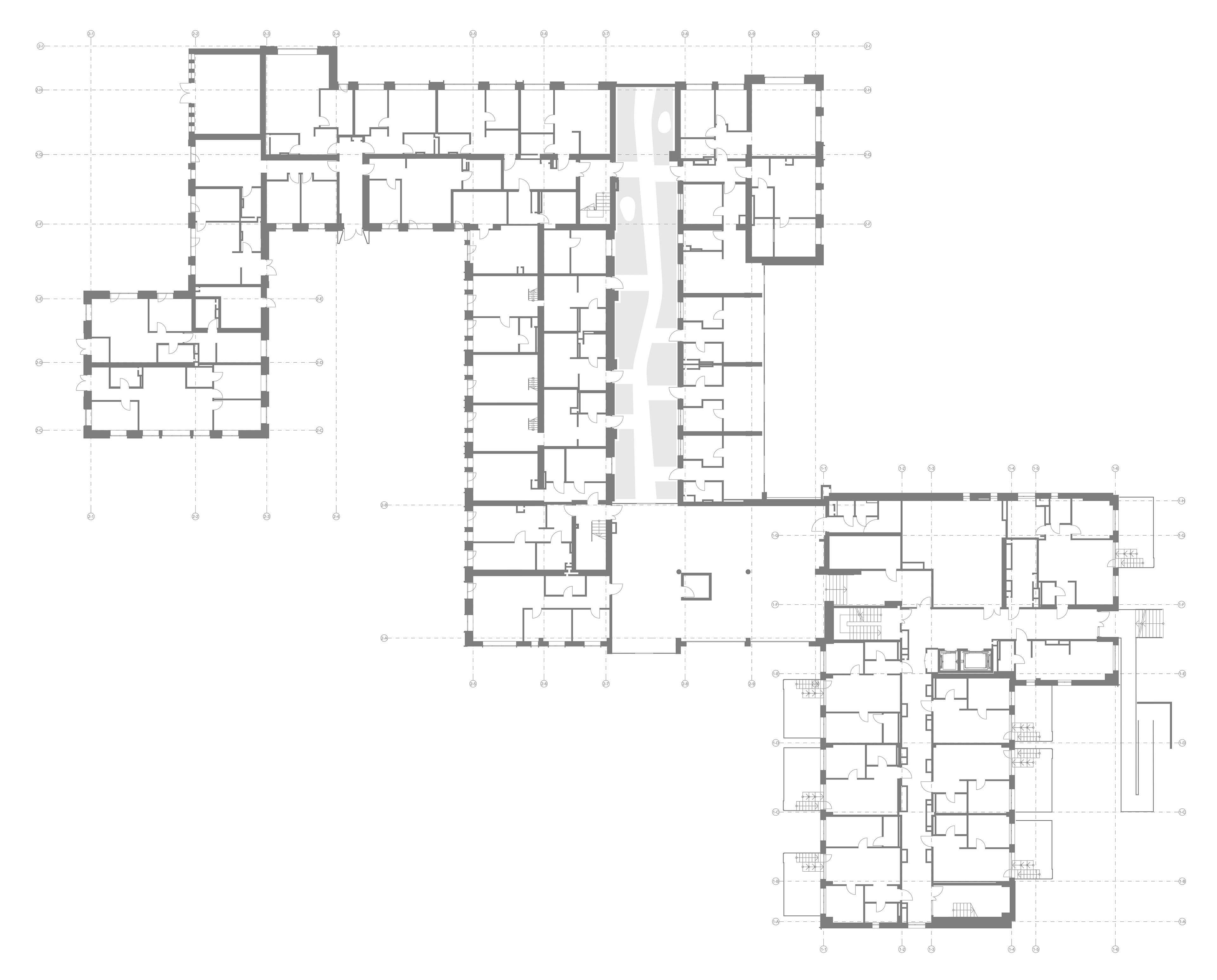
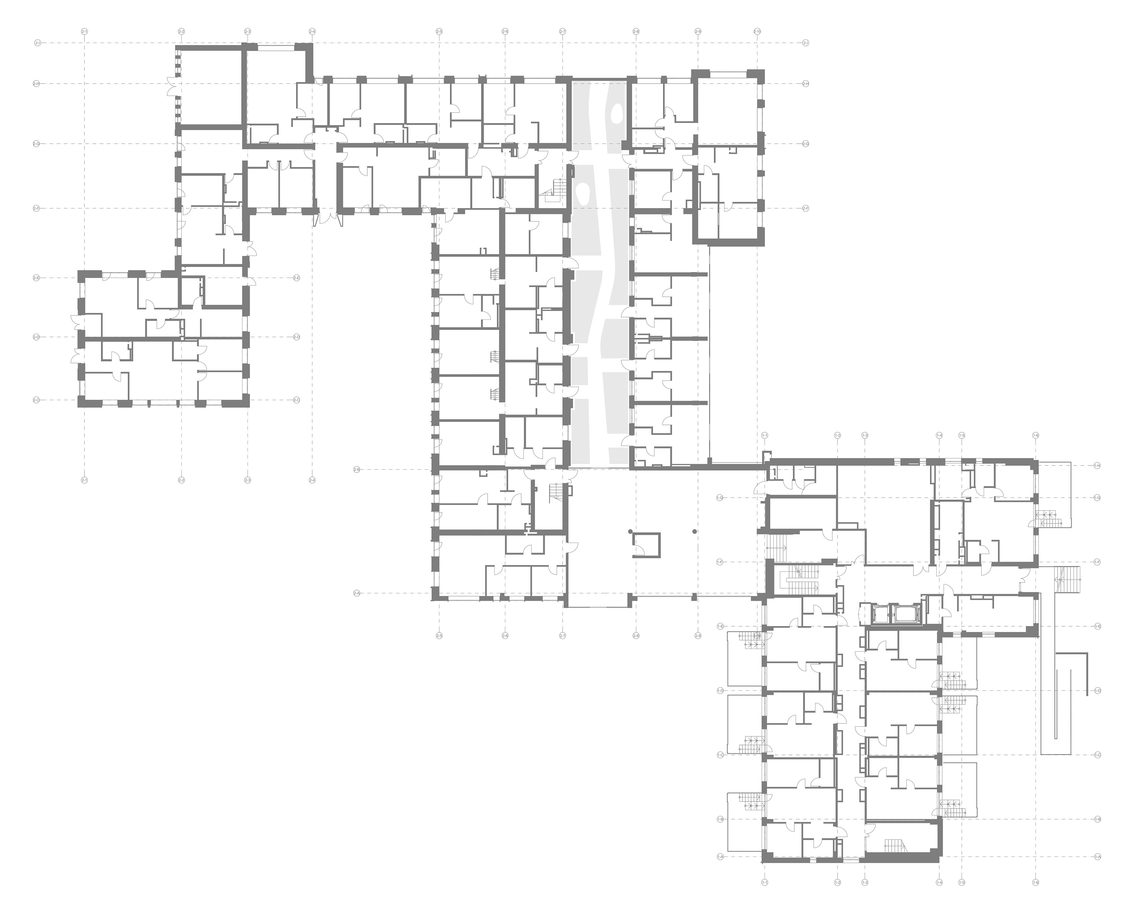
"Jūras skati" is a modern residential complex offering 112 fully finished apartments and lofts with modern infrastructure. The project focuses on sustainability, providing an environmentally friendly and aesthetic living environment. The goal is to offer affordable 1–3 room apartments that cater to the needs of various residents while maintaining a high quality of life.

The complex is located in Jūrmala on the first coastline, allowing residents to enjoy a unique beach atmosphere and picturesque natural views. It's an ideal solution for those who want to live close to nature, constantly enjoying a harmonious and peaceful environment.

The complex's rooftop terrace, located on the 10th floor, is one of its unique features. 
It offers: Panoramic views of the sea and forest, The opportunity to enjoy sunsets in a romantic and peaceful atmosphere, A sense of community—a place where residents can socialize, organize events, or simply relax.
The rooftop terrace combines aesthetics and functionality, becoming a place where families, friends, and neighbors can gather.

The complex's first floor houses a spacious and multifunctional lobby: A 200 m² space with high ceilings, A friendly design suitable for both work and leisure, Fast internet access, power outlets, and comfortable furniture to meet the demands of modern life, A well-maintained and secure territory is one of the project's priorities, offering - Bicycle parking, suitable for an active lifestyle, A children's playground, a safe place for kids that promotes socialization and physical activity, Charging stations for scooters and electric vehicles, providing sustainable mobility solutions, Parking, with convenient spaces also adapted for electric vehicle owners.

The project offers two types of homes to suit different needs: Apartments—comfortable and functional, suitable for families and individual use, Lofts—spacious with a unique design, ideal for creative and modern individuals.

"Jūras skati" is a project that combines convenience, modern design, and proximity to nature. The advantages of this complex make it an excellent choice for both permanent residence and investment. The rooftop terrace, well-thought-out infrastructure, and environmentally friendly approach allow for a harmonious and high-quality life on the Jūrmala COAST.

You may also like

Back to Top