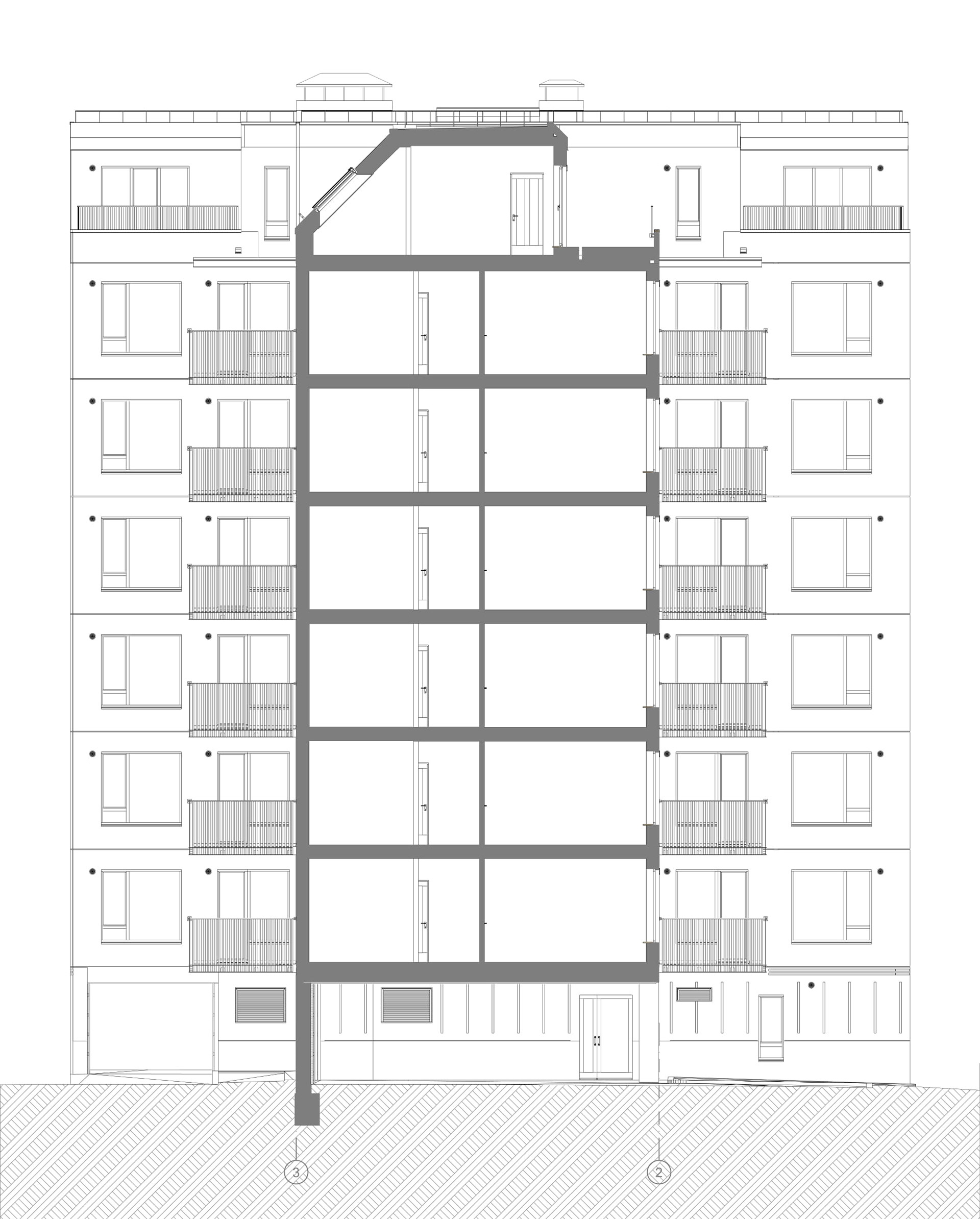
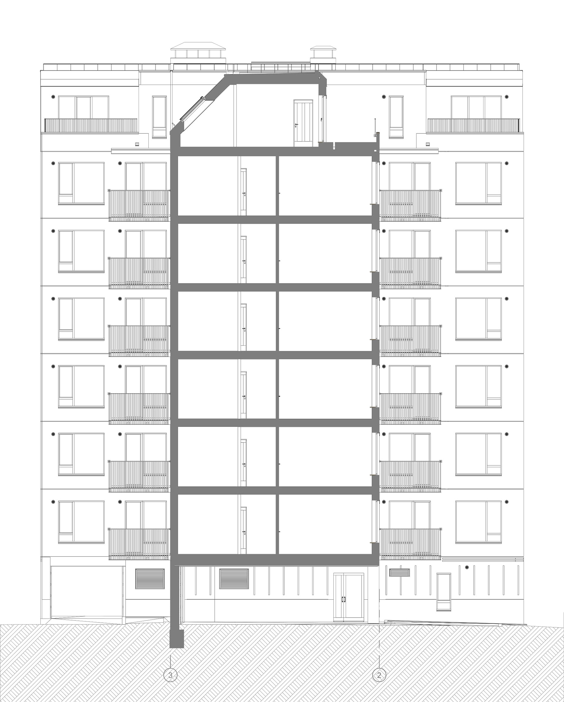
H49 | APARTMENT BUILDING
CONTEMPORARY RESIDENTIAL BUILDING WITH A T-SHAPED LAYOUT DESIGNED FOR FUNCTIONAL AND ELEGANT URBAN LIVING, FEATURING REFINED FACADE MATERIALS. GENEROUS GLAZING, BALCONIES AND ROOFTOP TERRACES, ALONG WITH THOUGHTFUL SHARED AMENITIES TAILORED TO THE BRASA NEIGHBOURHOOD LIFESTYLE.
LOCATION // RIGA, LATVIA
AREA // 2300 M²
YEAR // 2023
CLIENT // SIA HOSPITALU 49
AREA // 2300 M²
YEAR // 2023
CLIENT // SIA HOSPITALU 49
PROJECT TEAM:
LAYOUT17 SIA FOUNDER & PROJECT MANAGER PĒTERIS STRANCIS
LAYOUT17 SIA FOUNDER & LEAD ARCHITECT DAINIS BROKS
ARCHITECT RIHARDS ČAKSTIŅŠ // URBAN PLANNER AUSTRIS VAINEKĪTS
ARCHITECTURAL TECHNICIAN MARGRIETA KALNIŅA
VISUALIZATIONS MĀRIS PUTNS
LAYOUT17 SIA FOUNDER & PROJECT MANAGER PĒTERIS STRANCIS
LAYOUT17 SIA FOUNDER & LEAD ARCHITECT DAINIS BROKS
ARCHITECT RIHARDS ČAKSTIŅŠ // URBAN PLANNER AUSTRIS VAINEKĪTS
ARCHITECTURAL TECHNICIAN MARGRIETA KALNIŅA
VISUALIZATIONS MĀRIS PUTNS