PODNIEKU STREET | 2019

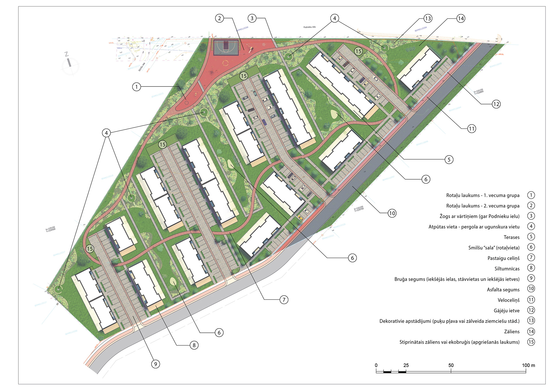
The project area consists of a 3.1-hectare plot of land located 1.4 km from the center of Ādaži. The project was initiated in 2018, and throughout its development, several building concepts were created with changes in both the territorial layout and architectural solutions. However, all versions share a common goal: to create a densely populated area with a high proportion of greenery, providing residents with a sense of a spacious and private outdoor space while not restricting public outdoor areas with fences. The layout of streets and buildings has been adapted to this goal.

The building volumes enclose the courtyards, separating them from the roadway, while open wooden deck terraces face the courtyards, providing a visual and functional connection between the indoors and the outdoors. The landscaping includes several lush groups of plantings, partially obstructing the view between the living spaces of opposing buildings and making the outdoor area more attractive for recreation. In the initial stage of the project, the construction of shared greenhouses was also planned to meet the needs of the residents.

You may also like

Back to Top