Reconstruction Project | COFFEE ROASTERY | 2019

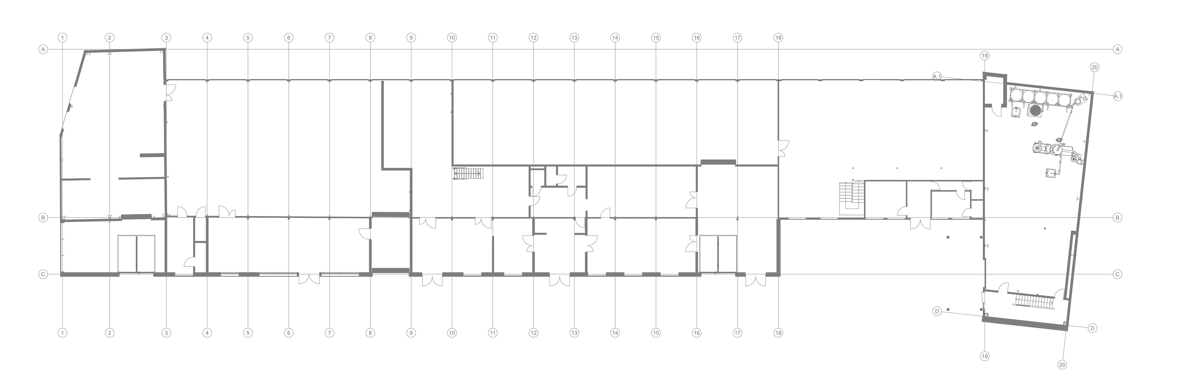
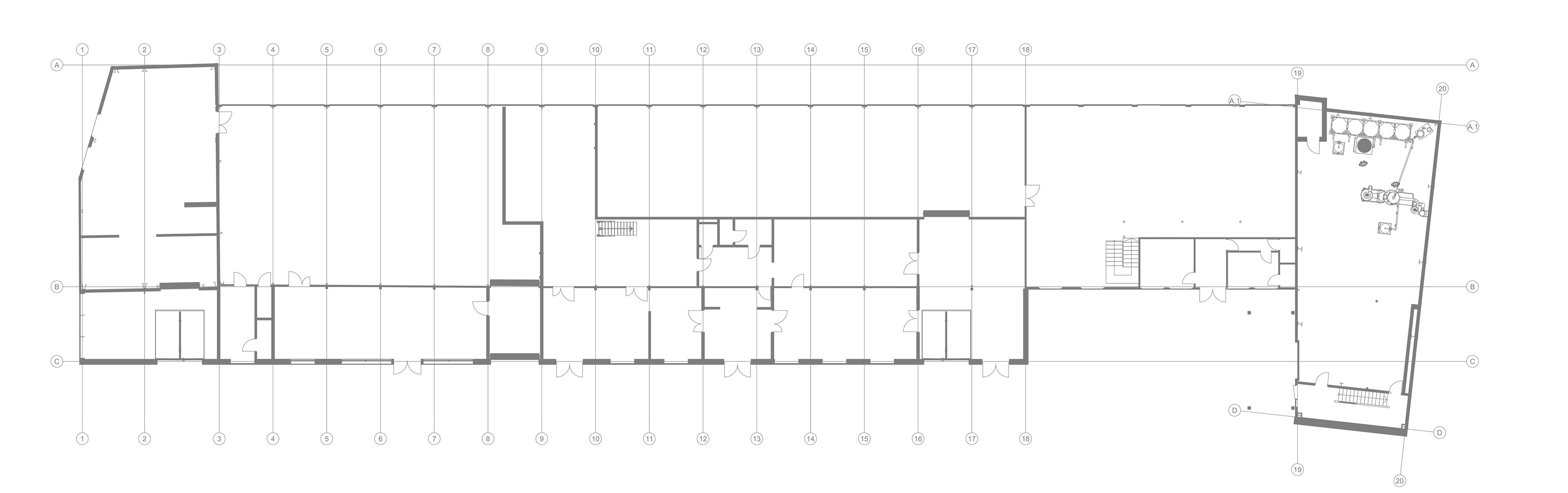
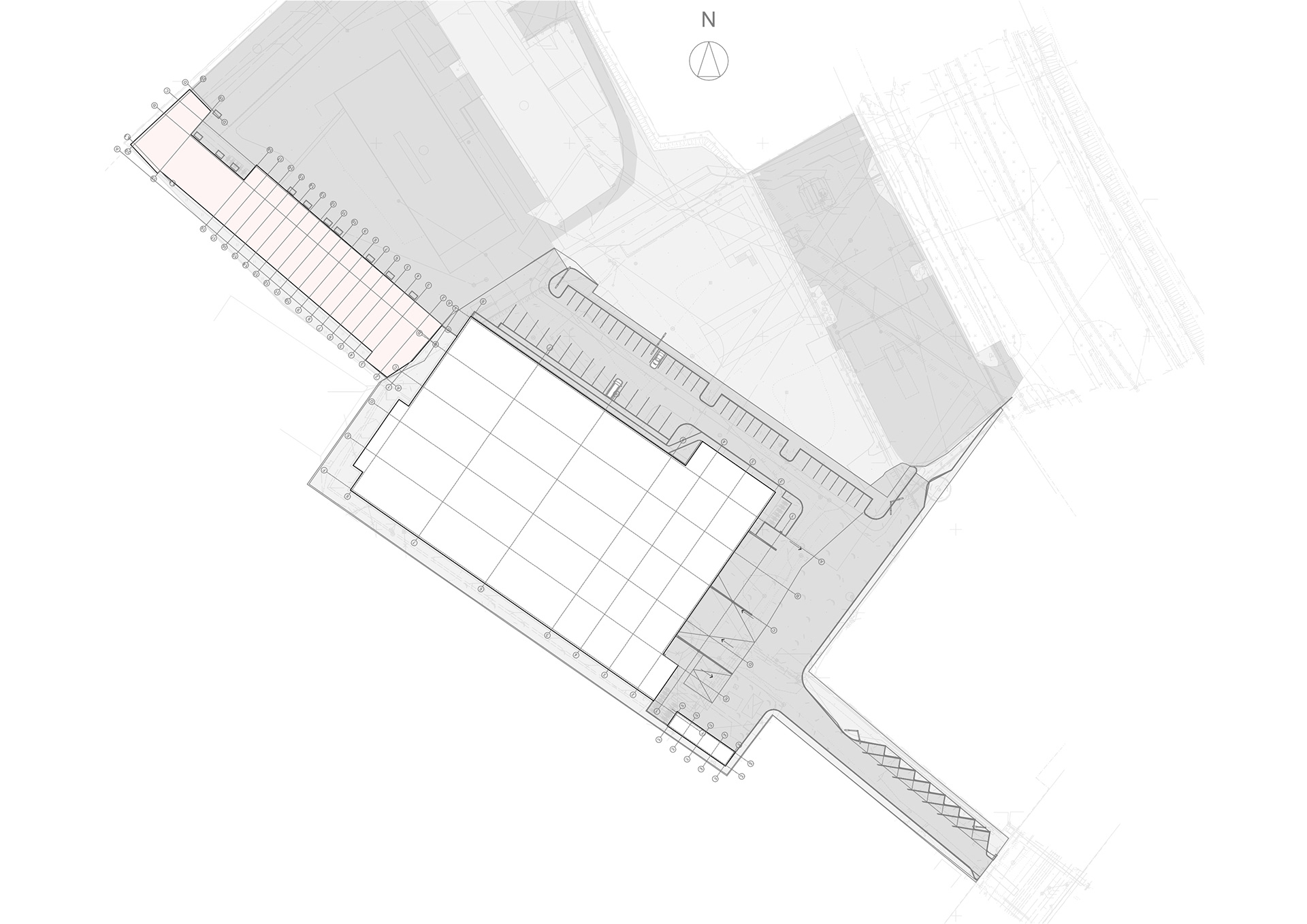
The reconstruction project envisions a modernized building with a total floor area of 1593.10 m², consisting of four volumes:
73 B - The existing commercial and administrative center to be reconstructed with a new layout // 73 k-5 - The existing building volume in the north part to be demolished and replaced with a new one, integrated into the building's functional technology // 73 k-6 - The existing building volume in the south part to be reconstructed and adapted for the building's functions // J - The new extension to be built.

The building houses warehouses that serve four business sub-departments: Dish and rental warehouse, Coffee machine and rental warehouse, Kitchen equipment and rental warehouse, Coffee bean warehouse.

The facade and interior will feature factory-painted materials, including concrete, plasterboard, and sheet metal finishes.

You may also like

Back to Top