MULTI-FAMILY HOUSING DEVELOPMENT | 2021

The detailed plan's territory consists of a 5.2-hectare plot of land in the middle of Mangaļsala. One of Mangaļsala's greatest assets is its vast, undeveloped natural areas. At the same time, Mangaļsala is also one of the most attractive potential development areas in Riga's green periphery. Therefore, one of the biggest challenges in developing the detailed plan was to ensure the conditions for a complete residential area while preserving the existing natural values.

During the development of the detailed plan, several species and habitat experts were involved. The layout of the construction plan is based on their opinions and recommendations. As prerequisites for the planned construction, conditions were set to preserve the most ecologically valuable trees and to avoid forest fragmentation and the alteration of the existing terrain as much as possible.

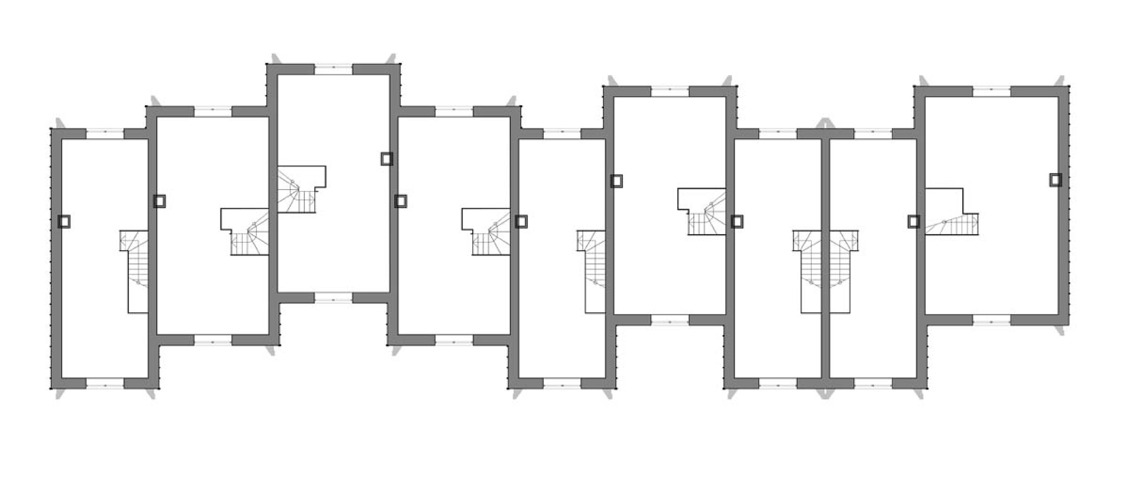
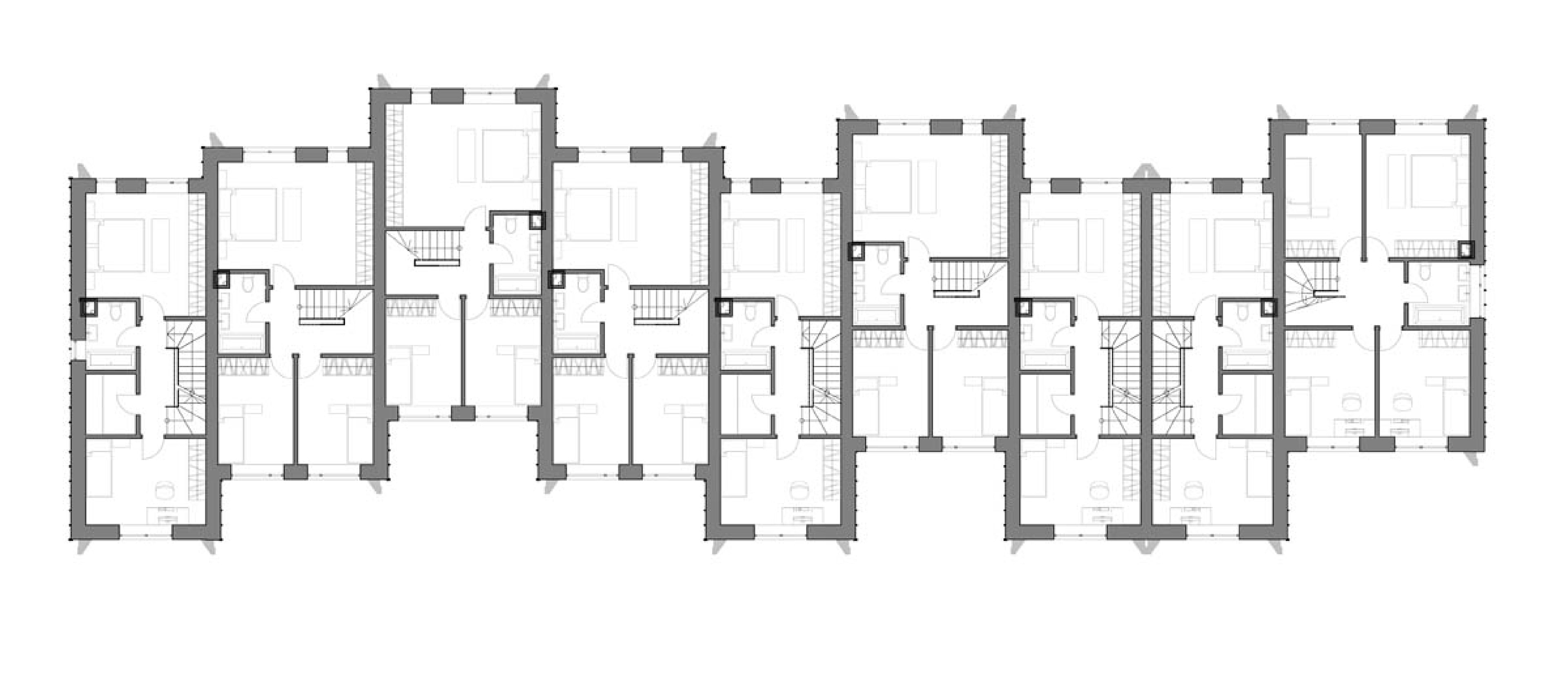
The detailed plan was developed by taking into account the plans for neighboring plots and the planned street infrastructure. One of the neighboring detailed plans was developed simultaneously with this plan. During the development of the detailed plan, a draft design and a minimum-scope construction project were also developed and approved for the planned row house development.

You may also like

Back to Top